Как это работает?
1
Выбираете товар
Добавьте интересующие вас товары в корзину
2
Оформляете заказ
Заполните все поля формы, чтобы получить предложение
3
Получаете предложения
В ближайшее время с вами свяжется менеджер для уточнения деталей
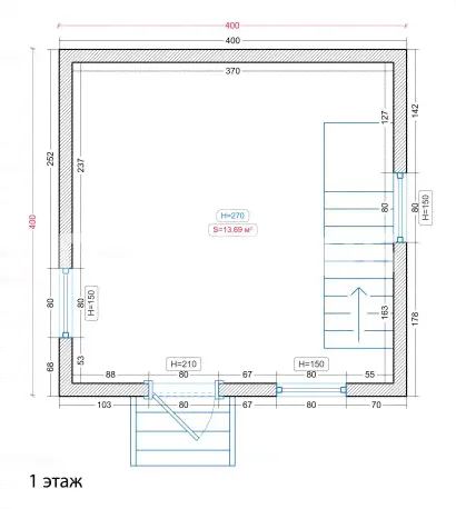
ДачныйДачный домик под ключ
Дом садовый под ключ с мансардным этажом. Недорогой дачный домик 4,0х4,0 метра, с мансардным этажом 2,5х4,0 м, с утеплением 150 мм хорошо прогревается и сохраняет тепло для круглогодичного проживания. Планировка дачного маленького домика: на первом этаже комната (16 кв. м) с лестницей, ведущей на 2 этаж. В подкровельном пространстве расположилась комната (10 кв. м). Мансардный этаж позволяет расширить жилое пространство. Не смотря на скромные габариты, внутри дом достаточно вместительный благодаря удачной планировке.В этом доме главными принципами выступают простота, функциональность и комфорт. Акцент делается на натуральные материалы. 1. Описание этого дома реальное и соответствует плану. 2. Фото реально выполненного проекта. 3. Цена реальная. Более подробная информация о применяемых материалах, конструкции дома смотрите в разделе ХАРАКТЕРИСТИКИ (кнопка выше) Если у Вас остались вопросы, вы можете проконсультироваться у нашего инженера. Очень важно, что вас будет консультировать инженер, а не менеджер по продажам. И второе важное замечание. Именно этот инженер, с которым вы будете обсуждать ваш проект, будет прикреплен к вам и будет отвечать далее всегда на ваши вопросы. Во время подписания договора, во время строительства и далее когда ваш дом вступит в эксплуатацию. Ознакомьтесь ниже с информацией о гарантиях и отсутствии предоплат. Важно — мы не берем предоплат! Вы не платите ни копейки, пока к вам не приедет весь материал и не начнется стройка. Работаем по договору с фиксированными ценами. За работу вы рассчитываетесь поэтапно и только за выполненный этап. Наша смета прозрачна и в конце строительства объекта не растёт. Если вы захотите добавить еще какие то работы в процессе, то на эти работы будет заключена дополнительная смета. ГАРАНТИИ На все виды строительных работ предоставляется ГОДОВАЯ гарантия в соответствии с договором. Гарантия дается на всё, а не на часть работ и материалов. МАТЕРИАЛЫ При строительстве применяем отделочные материалы только камерной с0 520000520000RUB520000RUB

0.00015
Дачный домик под ключ в Махачкале
Видео
Описание
Дом садовый под ключ с мансардным этажом. Недорогой дачный домик 4,0х4,0 метра, с мансардным этажом 2,5х4,0 м, с утеплением 150 мм хорошо прогревается и сохраняет тепло для круглогодичного проживания. Планировка дачного маленького домика: на первом этаже комната (16 кв. м) с лестницей, ведущей на 2 этаж. В подкровельном пространстве расположилась комната (10 кв. м). Мансардный этаж позволяет расширить жилое пространство. Не смотря на скромные габариты, внутри дом достаточно вместительный благодаря удачной планировке.В этом доме главными принципами выступают простота, функциональность и комфорт. Акцент делается на натуральные материалы. 1. Описание этого дома реальное и соответствует плану. 2. Фото реально выполненного проекта. 3. Цена реальная. Более подробная информация о применяемых материалах, конструкции дома смотрите в разделе ХАРАКТЕРИСТИКИ (кнопка выше) Если у Вас остались вопросы, вы можете проконсультироваться у нашего инженера. Очень важно, что вас будет консультировать инженер, а не менеджер по продажам. И второе важное замечание. Именно этот инженер, с которым вы будете обсуждать ваш проект, будет прикреплен к вам и будет отвечать далее всегда на ваши вопросы. Во время подписания договора, во время строительства и далее когда ваш дом вступит в эксплуатацию. Ознакомьтесь ниже с информацией о гарантиях и отсутствии предоплат. Важно — мы не берем предоплат! Вы не платите ни копейки, пока к вам не приедет весь материал и не начнется стройка. Работаем по договору с фиксированными ценами. За работу вы рассчитываетесь поэтапно и только за выполненный этап. Наша смета прозрачна и в конце строительства объекта не растёт. Если вы захотите добавить еще какие то работы в процессе, то на эти работы будет заключена дополнительная смета. ГАРАНТИИ На все виды строительных работ предоставляется ГОДОВАЯ гарантия в соответствии с договором. Гарантия дается на всё, а не на часть работ и материалов. МАТЕРИАЛЫ При строительстве применяем отделочные материалы только камерной с
Видео
БАНЯ - Дачный домик под ключ. ПРЕМИУМ.
БАНЯ - Дачный домик под ключ. ПРЕМИУМ.
PT6M58Strue0001-01-01 00:00:00 +0000 UTC
Отзывы
Отзывов еще нет - ваш может стать первым